Projekt “Alt-Britz”
Projekt “Alt-Britz”

Projekt “Alt-Britz”




 
 
 

Bauherr: privater Investor
Projektadresse: Alt-Britz 97 in 12359 Berlin Neukölln
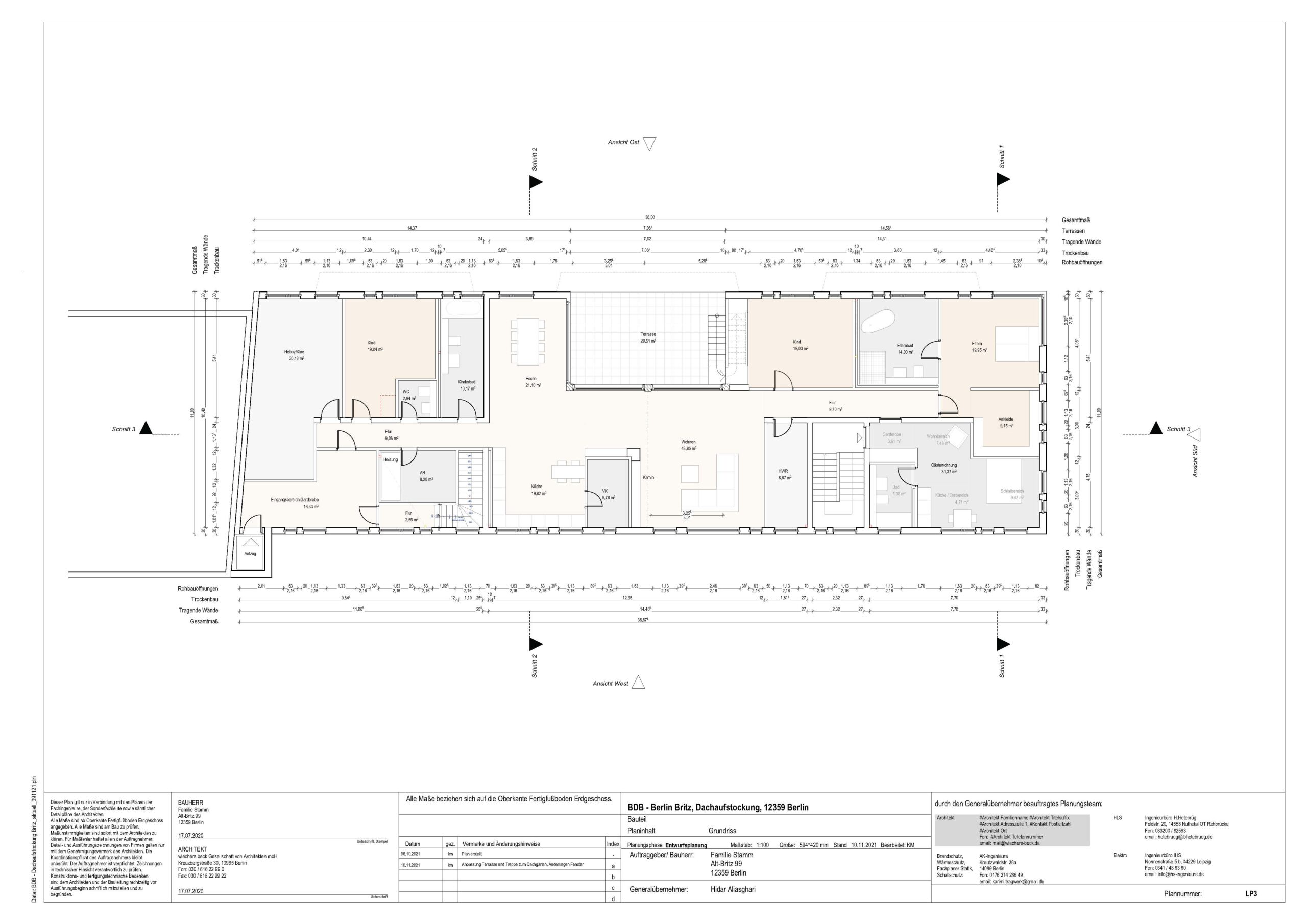
Über das Projekt
Auf einem Bestandsgebäude in Berlin Britz soll eine Dachaufstockung als Penthouse mit großem Dachgarten realisiert werden. Die großzügige Penthouse verfügt über mehrere Zimmer, einer Saunalandschaft, sowie einer Photovoltaikanlage. Das Bestandwohnhaus mit 22 Wohneinheiten wird vollständig energetisch saniert. Im Auftrag liegt die gesamte Projektrealisierung ab Leistungsphase 2–5 der HOAI.
Projektdetails
Grundstücksfläche
391.00 qm
Bauvolumen
560.00 qm BGF
Anzahl Einheiten
4 Wohneinheiten
Effizienzklasse
Effizienzhaus 55
Status
in Planung
Leistungen
Projektentwicklung, Projektsteuerung
- Machbarkeitsstudie
- Marktanalyse
- Konzeptentwicklung
- Finanzierungsprüfung
- Projektsteuerung LP 1–5
Adresse
Stendaler Straße in 12627 Berlin
Gewerke
WDVS
Auftragsgröße
4.200m²
Stendaler Straße in 12627 Berlin
WDVS
WDVS
Stendaler Straße in 12627 Berlin
4.200m²
WDVS
4.200m²
Ausführungszeitraum
Dez 21 — Jun 22
Bauliche Besonderheiten
Dez 21 — Jun 22
wiechers beck ARCHITEKTEN Fassade mit Klinkerriemchen, Faschenputz und unterschiedliche Putzkörnungen.
